Bolsillo Ojal

Investigación y relevamiento de información

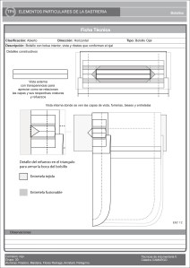
Geometral con transparencias para visualizar las distintas capas del bolsillo.

VISTA EXTERNA Y VISTA INTERNA.

Geometral con detalles constructivos, y particularidades del rubro.

Secuencia de operaciones. Paso a paso de la construcción del bolsillo. descripción del paso, maquinaria, hilo y aguja, detalles de todo lo necesario para su fabricación.

Molderia.

Despiece, con toda la información necesaria, hilos, datos, medidas, piquetes, puntos de ubicación, etc.

19 comentarios sobre “Bolsillo Ojal

Agrega el tuyo

  1. hola!!!!!soy de Mexico,estudio diseño de modas,voy cursando el modulo de caballero y tus fichas tecnicas de sastreria me estan apoyando muchisimo,cada vez que visito tu blog aprendo cosas nuevas y te agradecesco la facilidad con la que compartes tus conocimientos y es que,me he topado con maestros(que se supone que estan para enseñar) que no tienen la generosidad(que mas bien en su caso es su responsabilidad)que tu tienes al dar abiertamente toda la informacion que me/nos regalas,por lo que te debo decir: muchassss gracias!!!! 🙂 🙂 🙂

    1. Sue! Me da mucha alegria que te sirva la información!!! Te agradezco mucho tu consideración y tu comentario, son muchos los que usan el blog y pocos los que me escriben! Espero que te gusten y aproveches las nuevas entradas! Saludos!

  2. Gracias por compartir tu trabajo y tu informacion! hoy en dia en el area de diseño no se encuntran personas dispuesta a dar informacion! GRACIAS besoooo y mucha suerte,segui asi!!

  3. Gracias por la info que aportas.
    Actualmente estoy en un curso de corte y confección, en el módulo de abrigos; para lo cual debo hacer un bolsillo ribeteado. Buscando información, di con tu sitio y me parece fabuloso. En otros confunden el ribete con el ojal. Para aquellos q somos primerizos, imaginate el lío.

    Y no por falta de instrucción como la amiga, sino q se atravesó periodo vacacional, y me gustaría no regresar al curso sin idea de lo que hablaría mi linda maestra.

    Intentaré hacerlo,a ver q tal.

    Gracias nuevamente. Saludos desde México.

    1. Erika! Gracias a vos, por tu comentario tan cálido! Espero que te sirva esto y mucho mas! Suerte en todo lo que emprendas!

  4. muchas gracias por compartir tus conocimientos es muy didáctico y he corregido mi técnica al igual que el tuyo. .
    Dios te bendiga grandemente.

Deja un comentario

Web construida con WordPress.com.

Subir ↑